网站首页 网站首页 走进腾飞 走进腾飞 腾飞新闻 腾飞新闻 产品展示 在线留言 在线留言 联系腾飞 联系腾飞
 
  TX选粉机系列
  TF分级机系列
  TH烘干机系列
  T除尘器系列
联系我们
  联系我们
联系我们

盐城腾飞环保科技有限公司
地 址:江苏省盐城市新桥镇工业园区7号厂房

联系人:施经理
手 机:13805108525
电 话:0515-68815655
传 真:0515-88663955
邮 箱:tfkjhb@163.com
网 址:www.tfkjhb.com

  腾飞新闻
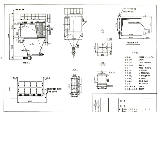
袋式除尘器工作原理图纸大全
2020-04-15 阅读次数:[1193]


版权所有 盐城腾飞环保科技有限公司   地址:江苏省盐城市亭湖区环保科技城庆丰工业园新川路20号
电话:0515-68815655 传真:0515-88663955 手机:13805108525 联系人:施经理 备案号: 苏ICP备19051463号-1
会员客服
有事点这里